先上一张图,如下:

这个户型是不是超爽!这个户型客餐厅是不是感觉要建面180㎡以上的大平层才能呈现?
但这个户型样板间产自尚璟瑞府建面约108㎡户型,该种结构还有室内面积更大的118㎡户型!刚需面积住出了豪宅的尺寸感,阿松建立的购房群中购房者对尚璟瑞府户型产品都非常中意,购房群内对话截图如下:

阿松在去项目看尚璟瑞府看样板间的时候,发现很多购房者真的是看了就“挪不动腿”,要反反复复看上好几遍。
阿松在自己建立的几百个购房微信群中,随手搜索了一下尚璟瑞府的楼盘名查看聊天记录后发现,有蛮多都买了尚璟瑞府。

尚璟瑞府户型好、小区已有交付(品质实景可见),首付30多万起买100多平的带装修房、装修很多细节很到位,有这么多购房者实地看过之后选择购买也在情理之中。
尚璟瑞府
(黄陂区-宋家岗)
主推三期建面约101-163㎡带装修户型
目前有少量房源可直接认购
均价12627元/平
含2500元/平装修
购买120㎡以上户型送车位

装修细节到位
1、首先尚璟瑞府全房都配备了中央空调,这在2500元/平装修的楼盘中档次就很高了。

2、入户处配置有小挂钩,买菜回来或手里有其他东西时可以挂在上面,可以腾出手开门,设计很人性化和贴心。

3、入户门配备的是8CM厚门板德曼入户门和海贝斯智能门锁,这个门据置业顾问介绍市场价值为1万多元一扇。

4、室内厨房等处的推拉门也比同档次的很多楼盘高档,实际体验样板间内其他如室内房门、阳台门把手的手感也能感觉出用的都是好材料。

5、其他很多材料也都使用的是品牌装修材料,现场装修材料公示图如下:

6、此外还有走道感应小夜灯,室内部分空间有USB、一键报警等细节设计。

PS:本文装修部分按照样板间展示标准评测,不代表实际施工水平。
已有交付品质实景呈现
尚璟瑞府一期已交付、二期一区已交付,小区整体居住品质已实景呈现。
一期大门实景如下:

一期小区内实景图如下:

二期一区已交付小区内实景图如下:

楼栋入户大堂精装实景图如下:

走道贴砖实景图如下:

据了解,项目三期在社区品质上较一期、二期还有升级,三期正在打造的部分园林(儿童游乐区)实景图如下:

尚璟瑞府社区整体档次看起来非常不错,武汉目前的一些小区里绿城的一些项目整体感觉跟尚璟瑞府比较相似。
尚璟瑞府前期交付业主满意度也很高,有购房者在阿松的购房群内讨论时也在调查后发现尚璟瑞府在交付阶段是没有负面消息的。

实地看过宋家岗几个楼盘后,会明显感觉到尚璟瑞府比周边小区品质感更强,但价格还低于周边大多数项目。其实从成本角度这个事情也很好理解,尚璟瑞府拿地比较早,拿地成本远低于周边项目,因此可以花更多资金在项目自身打造上,而周边的一些地价成交较高的楼盘,购房者其实很多时候是在为土地成本买单。
高赠送优质户型设计
尚璟瑞府在户型设计方面有几大核心优势:
1、公摊低,尚璟瑞府为小高层,公摊19%左右。
2、赠送面积大,尚璟瑞府采用中央空调设计,因此把飘窗都作为了拓展空间,比如下面卧室这个飘窗位置为全赠送面积,并且部分房配备了大面积窗,整体空间感更足。

3、得房率高,尚璟瑞府大多数户型加上赠送面积得房率可以高达90%以上。
4、套内空间尺度大,尚璟瑞府整体空间尺寸感都很大。
比如部分户型客餐厅开间可达3.9米左右。

样板间实景图
阳台超大,而且从这种图里可以看出来,项目样板间是做在实体楼里的,不掺假。

样板间实景图
项目建面约116㎡户型客餐厅宽近7米,项目156㎡户型主卧不算卫生间和衣帽间面积达近20㎡,主卧面积比一些刚需户型的客餐厅面积接近。

样板间实景图
尚璟瑞府共分三期开发,一期和二期一区已交付,目前主推三期,尚璟瑞府三期共开盘两次,推出了30、32、33、34、35、38、39共计7栋楼,目前有房源可直接认购。

尚璟瑞府三期占地面积约4.23万方,总建筑面积约13.36万方,计容建筑面积约9.8万方,绿地率30%,容积率2.32。共包含11栋14-15层住宅,共843套房源。项目整体车位配比约1:1,车位配比充足。

项目沙盘实景图
该项目整个地块较为方正,项目在楼栋设计上采用了错落部分,项目绝大部分楼栋都做到了正南北朝向。

规划图
项目有2梯3户和2梯2户两种结构,均为14-15层。

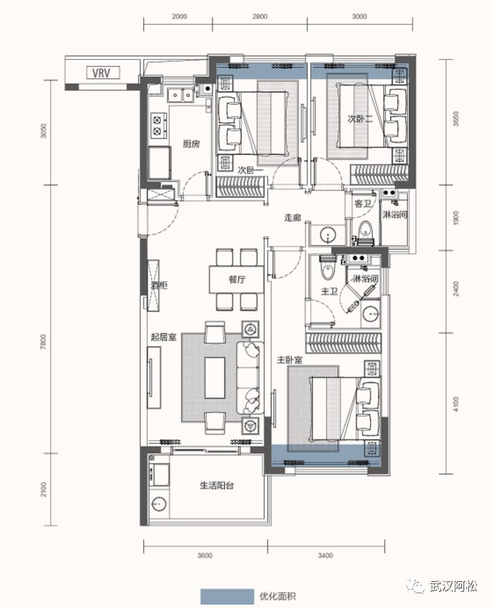
A-1户型约108平米:
该户型位于30、33、34号楼的边户,该户型是项目的明星户型,就是文章开盘那张样板间对应户型,该户型三房两厅两卫结构,南北通透,两开间朝南,三面采光,主卧是带独立卫生间和衣帽间的套间设计还可以打柜子,阳台和飘窗都有一定赠送面积,东侧或西侧为大面宽的窗,套内利用率高。
38号楼、39号楼边户118㎡户型跟该户型结构一致,套内面积更大一些。

A-2户型约101-105平米:
该户型位于30、33、34、38号楼及39号楼2单元的连廊中间户,三房两厅两卫,三开间朝南,半通透结构,北面对连廊,采光私密性一般,户型方正,动静分区,主卧为带衣帽间+卫生间的套房设计,三个卧室及两个卫生间均带有飘窗,加上客厅的南向阳台,有一定可优化面积,总体来说,这是目前市面上非常主流的户型。

A-3户型约102-103平米:
该户型位于30、33、34号楼的单元连接处的边户,三房两厅两卫,两开间朝南,南北通透结构,三个卧室均带有飘窗,加上客厅的南向阳台,有一定可优化面积,套内利用率高,这个户型是该项目的最小户型还做到了南北通透,比较难得。

B-2户型约126平米:
该户型位于32号楼边户,该楼栋是2梯2户的设计,整个户型完全南北通透;该户型三房两厅两卫,两开间朝南且三面采光,客餐厅超大横厅设计,是武汉市面上较为少见的产品,观景效果和整个户型的光线都非常好;该户型窗墙比超大且可优化面积较多;总体来看,是一个非常不错的户型。

C-2户型约138平米:
该户型位于32号楼边户,2梯2户设计,四房两厅两卫,整个户型完全南北通透,四开间朝南,南向带有连接卧室和客厅的大阳台,加上三个房间及卫生间的飘窗,可优化面积较多,主卧带有独立卫生间。

D户型约156平米:
该户型位于39号楼边户,四房两厅两卫,是本次开盘推出的最大户型,整个户型完全南北通透,四开间朝南,南向带有连接卧室和客厅的超大阳台,加上三个房间及卫生间的飘窗,可优化面积很多,主卧是带有独立卫生间和衣帽间的套间设计,主卧不含卫生间的面积约20㎡,主卧面积跟客厅面积差不多。

刚需&改善都适合的片区尚璟瑞府位于黄陂区宋家岗东路与庆云路交汇处 ,大区位上属于黄陂区临空新城,楼市板块属于盘龙城宋家岗板块,属于武汉楼市限购区。

大区位根据规划,临空新城板块规划常驻人口达20万人,吸引年旅游人口150万人,目前已吸引了卓尔通用、国航、海航等国际级航空企业落户。
该区域布局结构分为“两轴四区八板块”,两轴指的是由450亩城市景观公园贯穿的中央文化轴和乐活商业轴;四区包含复合商务区、水岸休闲区、生态宜居区和活力宜居区。
同时根据新规划,片区内还预计规划一个超牛的会展中心。总体而言就是区域发展前景很不错。

区域内空港中心实景图
微观区位
项目西北边是规划的商业用地和已经建好的香虹艺术公园;且根据规划该商业用地将建成涵盖风情商业街、酒店等的综合性商业项目,目前该地块已经被该项目开发商拿下;
项目东北边是宋家岗东路,一路之隔是建设中的临空第一学校;
项目东南边是住宅小区,西南角是规划的文体中心。

区域用地规划属性图
宋家岗片区目前交通出行条件较为便利,片区内一些商业已部分落实、部分配套规划正在建设。
交通:自驾方面,项目所处的区域内有快速路和多条主干道可以直达汉口核心,如巨龙大道、宋家岗东路、临空港大道(建设中)等主干道及机场高速(目前阶段收费,不过一直有要免费的消息)等快速路。

项目附近道路实景图
区域内还有龙港大道正在建设中,该道路横穿临空新城南北组团,东接机场高速、巨龙大道;西联机场二高速、城市四环线,通过8条匝道经空港立交连接机场高速和巨龙大道,目前正在建设中,最早有望于2020年建成通车。

龙港大道示意图
从项目出发走机场高速到汉口核心非常便利,通过巨龙大道可与机场高速互通,然后可与四环互通。从武汉城市留言板上的回复来看,机场高速后期确实有可能免费通行,目前正在进行前期相关工作。

城市留言板回复截图
公共交通方面,目前区域内有已经开通的地铁2号线,距离该项目最近的站点是航空总部站。据百度测距显示,该项目最东边距离地铁约700米,是步行可达的距离。

地铁测距图

地铁实景图
配套:
商业配套方面,项目自带约1.5万方的商业街,除项目自身的商业配套外,区域内还有很多的商业配套可共享:如项目北边由开发商拿下的地铁口商业地块悦荟天地根据规划后期将建成综合性商业项目;同时项目西面还紧邻规划中的21万方的大型商业综合体。

项目商业街局部实景图
教育配套方面,项目自带一所北师大新标准幼儿园,位于项目二期。

项目东南边距离已投入使用的恒大龙城华师附小约1.2公里,此外区域内还有黄陂一中等学校。值得一提的是,项目东边一路之隔就是建设中的临空新城第一学校。根据规划,临空新城第一学校为含小学和中学的九年一贯制学校,该学校预计引进名校。通过武汉城市留言板获悉,该校建设前期规划设计等工作已全部完成,目前已经开始建设,计划2020年9月投入使用。

学校建设实景图

学校文件说明
医疗配套方面,项目距离规划中的武汉市一医院盘龙城院区5公里左右,距离黄陂区人民医院盘龙院区约5公里左右(三乙),此外宋家岗区域内另规划有一家三甲医院。
项目西北角就是香虹艺术公园,与项目三期就隔着一个十字路口,出小区就能快速的到达公园。

公园与尚璟瑞府位置实景图
产品过硬、品质看得见、区域有潜力、交通便利、配套逐步成熟的尚璟瑞府只要首付30多万起,装修零首付的情况下可首付30万起,改善型的独梯独户130-156平的大户型也只要首付50-60万起!
结语:
尚璟瑞府户型设计好,公摊低、赠送面积多、得房率高、室内空间尺寸足,很多购房者看了该项目在实体楼里的样板间都挪不动脚,要看一遍又一遍。项目前期有交付,品质看得见,并且该项目交付阶段业主满意度很高。项目所处的区域、配套、交通等外部表现也都很不错。
在目前武汉30-40万首付档的楼盘中,尚璟瑞府单论品质可算第一梯队,同时与周边楼盘项目比品质更出众的同时价位上还有一定优势,总体来看尚璟瑞府是预算不多但同时还追求楼盘品质的购房者很不错的一个选择。
对尚璟瑞府感兴趣的可添加下面的置业顾问咨询:

武汉阿松原创发布,未经授权禁止转载
1、欢迎购房者加入武汉购房微信群,扫码加阿松微信后拉群(微信号asong2054),加群时请务必报意向购房片区↓有需要的可以找阿松帮忙推荐武汉楼盘靠谱置业顾问哦↓

2、关注阿松评楼公众号后回复楼盘名可查看全武汉所有主流新盘楼盘评测
3、每日最新的楼盘动态和楼盘推荐请及时关注阿松微信朋友圈
4、专业一对一问答&惊人购房内幕可加入阿松知识星球获取
5、开发商合作请关注本账号底部菜单“商务合作”
6、欢迎武汉地产行业从业人员扫码加入武汉地产业内群(加微信号asong2098),验证时请注明公司(或项目)+职位+姓名↓

免责声明:
①本推广内容仅为邀约邀请,所提及的楼盘相关数据均来源于楼盘开发商、楼盘置业顾问、开发商官方公众号、武汉房地产信息网等渠道,本平台无法对全部数据准确性负责并不对后期相关信息所发生的变化负责,且不因此承担任何责任,买卖双方的权利义务以房屋主管部门登记备案和购房合同为准,请谨慎核查。
②本推广发布的相关信息均为发稿时获取,对于未确定和建设中的相关信息均标示“规划”,本平台不对后期相关信息所发生的变化负责,并不因此承担任何责任,请谨慎核查。
③购房有风险,出手需谨慎,本平台仅提供楼盘信息参考,无法代替购房者进行购房决策,请购房者到项目现场实地考察后理性进行购房决策。