
龙湖 东湖高新·春江郦城(硚口--古田--限购)即将推出建面约90-142㎡毛坯住宅预计均价约17000元/平

最近这一段时间,朋友圈一直有分销机构发上图的消息,其中有2个字特别扎眼:现房。好久没有在武汉发现现房了,所以,胖哥决定一探究竟。
汉江湾副中心古田,曾经是武汉的传统的老工业区,随着老工业企业搬迁、城中村改造逐渐深入,古田成为了房地产投资的热土,吸引了众多大牌房企驻足,金地、华润、美好集团、龙湖等相继涌入古田二路,硚口区发展西扩,古田开始脱胎换骨,随着各大开发商的助力,加上地铁新规划、商业配套升级,进一步加速了古田的发展规划,让古田二路成为巨大的发展潜力的黄金轴。

2014年市政工作报告中,硚口古田片区规划为“汉江生态新城”,定位为汉口商业副核心。这里将建成大武汉具有特色的生态宜居之城、商贸服务之城、产业集聚之城,成为中国“汉江湾”。

而龙湖东湖高新春江郦城就位于硚口区长丰大道与古田二路交汇处。

(龙湖东湖高新春江彼岸实景图)

从小区位上来看:
北面为钢构厂、汽配城、物流中心等工业设施南面为科林门业工厂,华丽花园住宅小区、长丰大道高架桥西面为劳保城、2008城市花园住宅小区、丰硕路东面为古田二路,翡翠中心住宅小区

(项目南面科林门业)

(项目西面正在施工中的丰硕路)

(项目对面的汽修厂)区位点评:项目属于汉口三环内,二环外项目,位于硚口古田片区,目前汉口三环内主要几个刚需购房区域:江岸后湖、江汉杨汊湖、硚口古田,前两个基本已告别刚需属性,价格均在18000以上,另一方面,硚口延伸区域吴家山的房价衬托,古田莫名其妙成了刚需洼地,但是古田区域还是有不少的产业园、物流中心等工业项目。自驾出行为主,公交为辅龙湖东湖高新春江郦城门口就是长丰大道的高架桥,出门100米就可以上长丰高架,长丰高架向西约3公里就可以上2环线,或者进入泛海CBD等汉口中心区域。由于项目就在古田主干道之一的古田二路上,从古田二路向北可以到三环,向南可以到解放大道,项目距离三环线也非常近,仅仅1.5公里就可以上三环,自驾出行非常方便。

(项目门口长丰大道高架桥,远处为龙湖项目)
地铁:项目周边距离最近的轨道交通为轻轨1号线古田2路站,大概长度为1.2公里,步行距离较长,另外距离7号线常码头站3公里,6号线金银湖站3公里,都需要其他交通工具进行换乘。
公交:项目门口就是公交车站,为长丰大道长丰八队站,这个站点公交主要为541路、548路、736路、792路。路外项目北侧的丰硕路上还有2趟公交,分别是329路跟528路。

(小区门口公交车站)
交通点评:项目门口就是高架桥,进出非常方便,通过高架桥可以快速换二环线或者三环线,路外项目旁边就是硚口区的主干道之一的古田二路,进出解放大道、园博大道、等主干道都较为方便,但是整个区域内都有一个通病,就是距离轨道交通较远,但好在周边公交还比较多,能够一定的缓解交通出行的压力。
门口就是大型超市,自带商业街项目马路对面就是长丰大道中百仓储。

(项目对面中百仓储实景图)
项目自带2.4万方商业街区,分布在k4、k5、k6地块沿街,形成了一个1公里的邻里街区式商业体,在加上k3地块的天街购物中心,将会成为长丰片区的商业中心。

(部分社区底商沙盘图)
医疗方面:最近的普爱医院距离项目车行距离约3.5公里;同时,项目还可沿古田二路快速前往解放大道沿线的同济、协和医院,自驾约15分钟。
教育方面:项目周边教育资源也非常丰富,小学有易家墩小学,韩家墩小学(北区)。初中有武汉四中、滨江十一中、四十三中、博学初中、常码头中学。
生态方面:项目周边有园博园、竹叶海公园,10分钟即达汉江湾滨江生态公园。
配套点评:出门就是超市,还有项目自带的大型商业,商业优势明显,周边教育资源也较为丰富,但是没有特别出名的学校。
70万方大型综合体项目
龙湖春江郦城位于长丰大道和古田二路的交界处,有k3-k7等5个地块,其中k4,k5,k6是住宅地块。整个项目总占地约11万方,建面约70万方,是古田片区最大的商住综合体项目之一。

K6地块规划净用地面积33706.49㎡,总建筑面积191073.65㎡,其中居住建筑面积130738.50㎡,商业服务业设施建筑面积10798.76㎡,规划住宅总户数1092户,容积率4.23,规划机动车停车位1371个。该地块整体布局与K5地块相似,合计7栋楼,其中住宅5栋,1、2、5号楼分2个单元,另外2栋楼仅1个单元;6、7号商业楼均靠近长丰大道。7栋楼中间合围处为中央花园。

(龙湖东湖高新春江彼岸)

从上图我们看出,整个地块属于围合式布局,这种布局不仅可以让每栋楼都能够享受到中央花园景观,而且楼间距也有保证,使得整体楼间距都超过了45米,这样基本上低楼层也会有很好的采光。
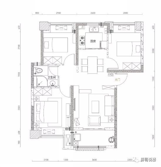
95平米3室2厅1卫

该户型位于5号楼的边户。整个户型比较紧凑,户型较为方正,南北通透,其中主卧跟客厅朝南,客厅还带有一个南向阳台,采光效果不错,3间卧室也能够满足大部分刚需家庭的居住需求,餐厅的面积较小,而且厨房在北面的进风口。
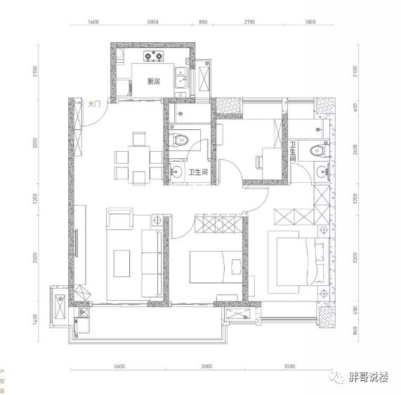
116平米3室2厅2卫

该户型位于1、2、3、4号楼的中间户,户型方方正正,主卧、次卧、客厅三面朝南,超大南向阳台连接次卧与客厅,餐厨客一体化整体客厅感觉非常大,主卧自带卫生间私密性较好,但有一件房朝北。
135平米4室2厅2卫

该户型位于3、4号楼的边户,整体户型南北通透,并且4开间朝南,可以说这个标准达到了很多超大户型都没有达到的标准,仅仅一间房朝北,客厅餐厅厨房一体化,还带有南向阳台,显得整个房较大,主卧自带卫生间私密性也比较好,走道太长,有一定的面积浪费。
项目亮点
1、梯户比高。除了5号楼是2梯4户外,1-4号楼分别是4梯4户和2梯2户的单元。1-4号楼可以做到1:1的梯户比。相当于是每户都有一部电梯,这样的梯户比一般都是比较高端豪宅才会有,这样早晚高峰的时候就算等电梯,也会比较快,这一点龙湖做的还是非常不错的。
2、不仅人车分流而且非机动车分流。分别设置人行道,非机动车道,机动车道,这样整个小区有序走各自的道,免得出现安全问题。
3、双入库大堂设计。不仅地上入库做的非常漂亮,地下车库的入库大堂也做的非常精美。
4、准现房。龙湖东湖高新春江郦城预计今年年底交房,胖哥从现场看到,整个小区做的差不多,应该能够准时交房。毛坯现房有很多亮点,比如说交房早,装修就找,可以早点入住,如果是投资的客户,可以早点开始回收资金成本,如果按照约3000元/月(打比方不代表实际租金)2年期来算,可以多收益7万多元。

(图为项目现场实景图)
5、“中国第一钻石级物业”。龙湖东湖高新春江郦城物业费3.3元,这个价位在武汉新房中算是中等水平。都说龙湖的物业好,龙湖的物业到底怎么样好法,春江郦城是武汉的第一块试金石。让我们拭目以待。

6、中国园林大师。龙湖的园林是四季常绿+三季有花,在小区道路两旁都是丹桂、三角枫等十余种全冠成树,而这些成树在种植之前,就已经从全国各地运到武汉苗圃基地,进场栽种前,这些树在武汉已孕育两三年,服了水土。

(园林沙盘效果图)
7、小区自身配套设施齐全。小区自带一条环形全龄健康漫步道。连接5个主题景观私享花园。尤其是小区中央的时光共享大中庭,有可以会客接待朋友的采薇庭、有可以休憩野餐的阳光SPA草坪,还有一个超大的全龄儿童活动场地,满足不同年龄人群的需求。小区内还设有2个羽毛球场和1个龙小湖主题儿童乐园。
8、自带龙湖天街。但凡龙湖的大盘,且配套了其自有商业品牌“天街购物中心”的,常常是它项目中很大一个卖点。天街,就是一个集购物餐饮休闲娱乐等为一体的一站式商业综合体。有了它,业主的大部分商业配套需求全部可以就近完成。从它在其他城市的表现看,天街也对周边有较强的人流吸纳能力。

(重庆龙湖天街实景图)
关于价格
龙湖东湖高新春江郦城对外报价为17000元/平米,这个价格在整个古田区域来说算比较高的价格,目前古田片区美好香域花境、翡翠中心、美好名流汇跟龙湖东湖高新春江郦城一样都是毛坯。
其中翡翠中心跟龙湖之隔着一条古田二路,前期均价15500元/平米,比龙湖便宜近1500元/平米。
美好香域花境才开盘均价13650元/平米,龙湖比它贵了近3500元/平米距离只隔1公里左右。
位于解放大道沿线的美好名流汇9月开盘价格16800元/平米,位置比龙湖好,价格还比龙湖便宜近200元/平米。
从周边楼盘价格对比来说,龙湖的价格高出太多。

而项目周边,万科东风村地块地价已经达到了12000元/平米,按照最近的土拍价格,龙湖17000元的售价,其实性价比已经很高了。并且按照龙湖的品质,龙湖楼盘的二手价格一般比周边楼盘贵20%-30%。

胖哥综合点评:
1、项目位于古田区域,周边区域较为复杂,周边有工业园区,物流区。
2、项目交通较为便利,出门就是快速通道长丰高架,但是目前周边没有地铁,这也是该区域的整体硬伤
3、门口就是大型超市,小区还自带商业,满足居民的基本商业需求没有问题,周边也有各种学校配套,但是学校整体一般
4、项目整体体量大,本次推出的地块还是有很多设计亮点,户型整体设计不错,95的3房性价比很高,另外2个户型设计也还不错。
5、项目是现房,同时又是毛坯,这一点很吸引购房者,但是对比周边其他新盘价格有点高。
如需要项目置业顾问,或者想让胖哥推荐靠谱楼盘可以添加胖哥微信

热点区域
二七滨江 长江新城 光谷南 蔡甸
吴家山 汉南 后湖 关山大道
武汉不限购楼盘
热点关注
地铁沿线 12号线 小户型 学区房
胖哥问答 二手房 套内面积 房查 刚需
落户政策 公积金 房产税 房产证 度假别墅
落户新政 华发维权
热门楼盘
汉口
美联中心 仁恒公园世纪 星河2049(百步亭)
星悦城 汉悦府坤璟 太子汉府 远洋万和四季 东原阅境
美好名流汇2期 天纵半岛蓝湾 南德长江城 金辉江樾云著
南德·泊湖澜岸 华发金茂逸墅 万科汉口传奇锦棠 青青佳园
华星融城 金地北辰阅风华 千禧城 天赐金龙城 美好名流汇
自贸环球公馆 星河2049
汉阳
龙湖春江彼岸 禹洲朗廷元著 City+国潮公寓
城投四新之光 武汉国博新城 保利星河九洲
碧桂园·忆西湖 凯德·悦湖 中建锦绣双城
地铁盛观尚城 华翔融侨天域 恒韵府 洺悦江湾
武昌
景瑞天赋滨江 新力城 五矿万镜水岸
武汉军运村 长投绿城兰园 万科保利联投理想星光
雅居乐 合景·梧桐四季 城投瀚城 招商东城华府
旭辉华宇江悦府 万科云城 中建铂公馆 翰林尚苑
招商一江璟城 鄂旅投书院世家 保利江锦
免责声明:本文提及的所有楼盘信息均为项目对外释放信息,来源于项目置业顾问、楼盘官网及各大房产网站等,本平台无法对全部信息精准性负责且不因此承担任何责任,最终信息以政府部门登记备案和购房合同为准,请谨慎核查,读者若产生购买行为,请务必看清售楼处的周边不利因素公示,样板房的非交付标准明示,对项目周边现状进行实测。并在签署各类法律文件时,仔细阅读相关条款。另外,正文部分图片来源于网络,如有侵权,请联系胖哥说楼后台,我们将根据情况处理。