户型:2室2厅1卫1厨风格:北欧风格面积:110㎡
设计亮点:
1、局部点缀跳跃的色彩,万变不离明亮、简约和自然的北欧风。2、餐厅的卡座设计,进餐也文艺了不少。3、卫生间人性化的设计,充足的储物空间+Get遮丑技能。4、家具之间的呼吸感通畅,距离产生美。

户型图

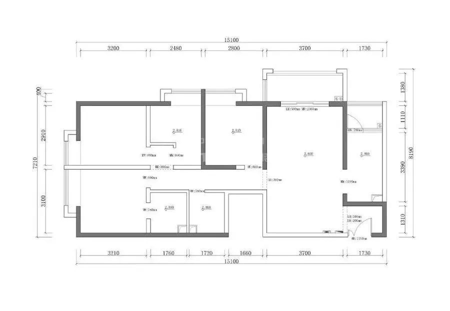
原始平面图
户型分析
优点:户型方正、空间通透,卧室都带有休闲飘窗,空间可变性大,有独立的生活阳台和休闲阳台。
缺点:
1、主卧室在整个空间配比相对较小。
2、卫生间烟道占比高,对空间布置有局限性。
3、儿童房空间比较异形,空间利用率低。

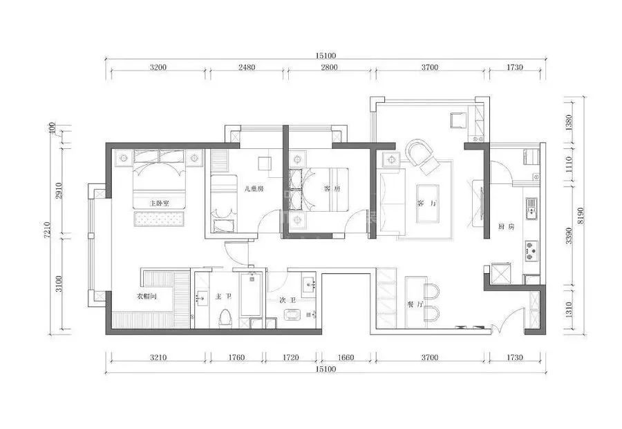
最终平面布置图
户型分析
1、在餐厅位置设计卡座,增大餐厅与厨房之间的通道宽度。
2、调整主卧室的空间尺度,利用原来的次卧做主卧,主卧做衣帽间,使整个主卧空间占比高。增加主卧的舒适度。
3、更改儿童房的门洞位置,加大空间利用率。最终平面户型图。
餐厅

? 餐厅利用卡座的形式,增加了储物的功能,餐厅墙面颜色选择和沙发背景墙颜色一样,增加空间的连贯性。鹅黄色的抱枕和墨绿色背景墙给人不一样的温暖。

? 餐厅空间里卡座、吊灯、木质餐桌椅、黑板墙、绿植的搭配颇有咖啡馆范儿;黑板墙转角是入户门,简单的百叶门鞋柜和挂画搭配。
客 厅

? 空间整体颜色以墨绿色、白色和原木色为主,在用灰色和鹅黄色来点缀局部,阳台落地窗和客厅大面积的白色是北欧的典型搭配,明朗干净。
墨绿色的背景墙与玲珑精致的的挂画,赋予空间色彩饱满丰盈之感。

? 顶面没有过多的复杂造型,利用叠级线条增加空间的层次感;黑色明装的轨道灯与白色的顶形成对比,简洁而不复杂。
乳白色带点朦胧视感的额落地窗,大面积的文化砖和分子魔豆灯的搭配,增加采光的同时还显得格外通透。

? 地板和沙发的灰色是空间中颜色的过渡与调和,墙面则跳脱的选择绿色,更加贴近自然且不失简洁。
电视墙的右边进去是厨房,为了让空间看起来更加美观与实用,在厨房门的旁边刷了黑板漆,使空间简约而不简单。
主卧

? 主卧是由两个房间打通设计而成的,增加了衣帽间的功能,以白、灰、粉为主色调大气自然,宽敞舒适,彩色的墙画、铁艺灯具和椅子保留着金属质感,提升空间品质,小巧可爱的床头柜,收纳生活的小零碎。
次卧

? 次卧与主卧的风格相得益彰,灰色的墙面加黑色的铁艺床,粉色的装饰画与床品,恬静温馨。
卫生间

文章内容来源于网络,如有侵权,请联系删除
推荐阅读
【美装日志】现代简约 | 蕴藏内敛淡然的隐逸美学。
【美装日志】现代法式 | 彰显摩登时尚的青春感。【美装日志】欧式典雅大气,凸显空间的新古典韵味。
雕刻回家的幸福

与你一起找回家的全貌
今天的你「在看」了嘛
▼