
房屋信息
设计|Design:观致国际设计
主创|Creator:沙海亮
风格|Style:美式轻奢
地址|Address : 江苏淮安·水韵天成
About Design
关于设计
原始结构图

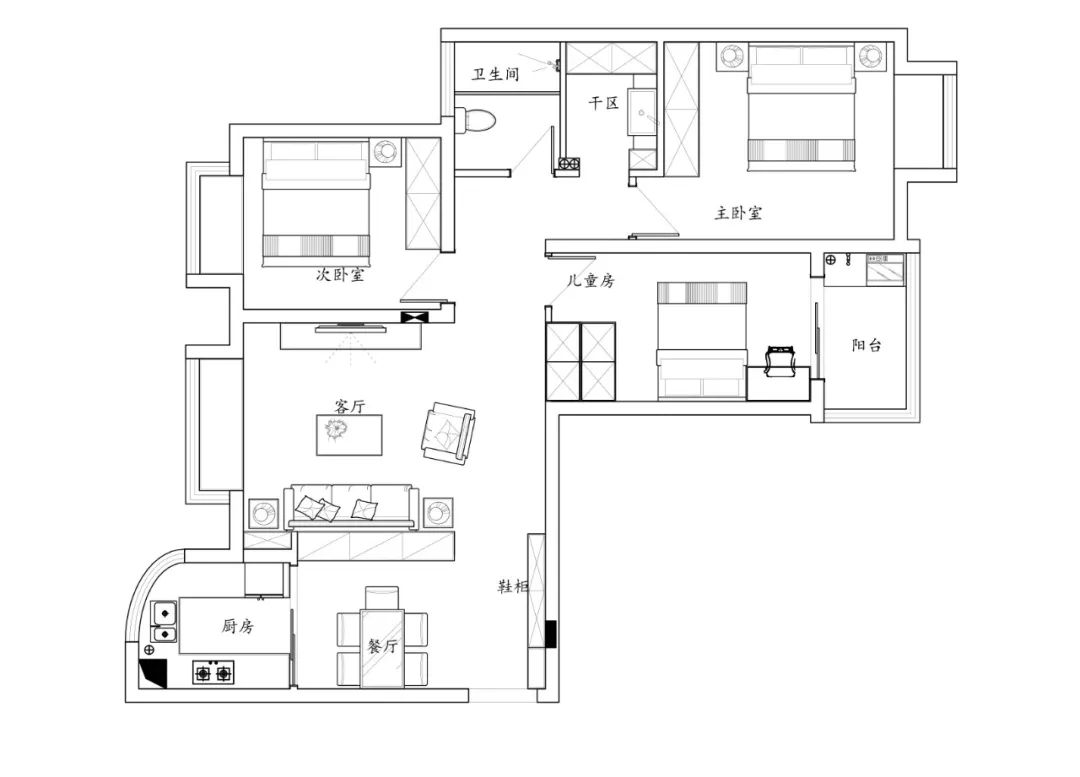
平面布置图

客 厅
LIVING ROOM

客厅中性而低奢的黄铜点缀于备受青睐的高级灰空间中,使得整体空间宁静而又高雅。
餐 厅
DINING ROOM

轻奢的时尚干练与光洁质感,融入简约美式的典雅柔美与温馨,纤细黄铜的优雅光泽,呈现出摩登都市品味。
卧 室
BEDR ROOM

主卧的硬包打破了空间的沉默,温馨又自然强化了空间的质感,体现了房间的奢美。 设 计 师
DESIGNER
识别二维码
关注我们

联系我们
电话:0517-83758882
新浪微博:观致国际设计-GRANZE
官网地址:www.gzgjsj.com
地址:淮安市珠海路5-1号(钵池山公园南门)
可点击下方“阅读原文”了解更多