
速美超级家上河
宸 章
献礼居住于杭州的名流雅士
杭州东部,水韵之城,都市繁华悠然入境。
作为杭城摇号以来第13个万人摇楼盘,上河宸章占据了城市难得的景观资源,匠心打造多维养心景观园林,让建筑之美与自然风景在此和谐共生,献礼居住于杭州的名流雅士。

为了给上河宸章的业主提供更好的服务,东易日盛速美超级家申花店对每个户型进行精细的量房、预案等一系列准备工作。

他们悉心研究户型优缺点,结合业主诉求提出解决方案,今天就为大家带来他们的方案解析,看他们如何还原设计真谛,打造舒适家居。

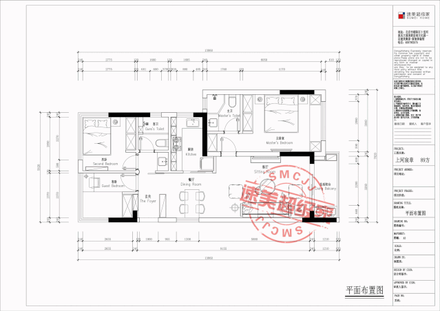
88㎡户型-杜东炎作品
原始结构图
ˇ

平面方案图
ˇ

效果图
ˇ
本方案户型面积为88平方,采用的是现代简约风格。本户型流线较为简单、实用。

餐厅、客厅、过道空间形成独立却又完整空间,空间功能分布合理。以简洁明快的设计风格为主调,简洁和实用是现代简约风格的基本特点。

首先,入户处将客卫的墙体往里嵌,增加了一个鞋柜。主要的改动是将书房改成了餐厅,提高了就餐区域的面积。

其次在主卧增加了一个衣帽间,扩大了储藏功能。洗衣机放在了阳台,厨房是U字型的橱柜设计,方便了业主的操作。整个户型的采光较好,非常舒适。

现代化的生活步伐,使人身心具疲,渴望在家找到温馨、自由,不受束缚的感觉,现代简约是不错的选择:简约家居、低碳生活。

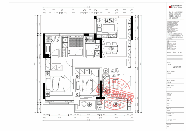
89㎡户型-姚陆通作品
原始结构图
ˇ

平面方案图
ˇ

参考意向图
ˇ

89㎡户型-郭志敏作品
原始结构图
ˇ

平面方案图
ˇ

参考意向图
ˇ

118㎡户型-温正特作品
原始结构图
ˇ

平面方案图
ˇ

参考意向图
ˇ

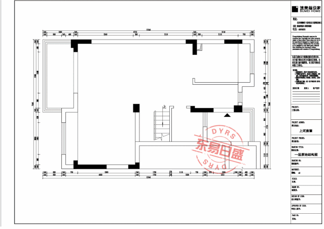
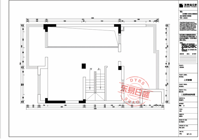
200㎡上叠户型-周周作品
一楼方案图
ˇ

二楼方案图
ˇ

三楼方案图
ˇ

参考意向图
ˇ

在线咨询设计方案
微信留言“楼盘+联系方式”
或拨打免费咨询热线:400-0060-251 即可在线预约

推荐阅读
(点击图片即可获取全文)

装 饰 美 好 空 间
筑 就 幸 福 生 活

点击
阅读原文
免费获取装修报价