安徽艾约塔硅油有限公司
网站首页
关于我们
产品中心
全部
通用型液体硅橡胶
模具用液体硅橡胶
移印液体硅胶
涂覆液体硅胶(新品皮革胶)
丝印液体硅胶
免二硫液体硅胶
食品注射成型液体硅橡胶
自粘性液体硅胶
医疗级液体硅胶
光学液体胶
电子灌封胶
食品级捏捏乐硅胶(新品)
汽车零部件用液体硅橡胶
导热灌封胶
发泡液体硅橡胶
特种硅胶
情趣用品液体硅胶
资料下载
新闻资讯
公司新闻
行业动态
联系我们
English
网站首页
关于我们
产品中心
资料下载
新闻资讯
联系我们
您的位置:
网站首页
行业动态
印度尼西亚的城中村住宅,美得让人想住进去
印度尼西亚的城中村住宅,美得让人想住进去
阅读量:3856206
2019-10-27
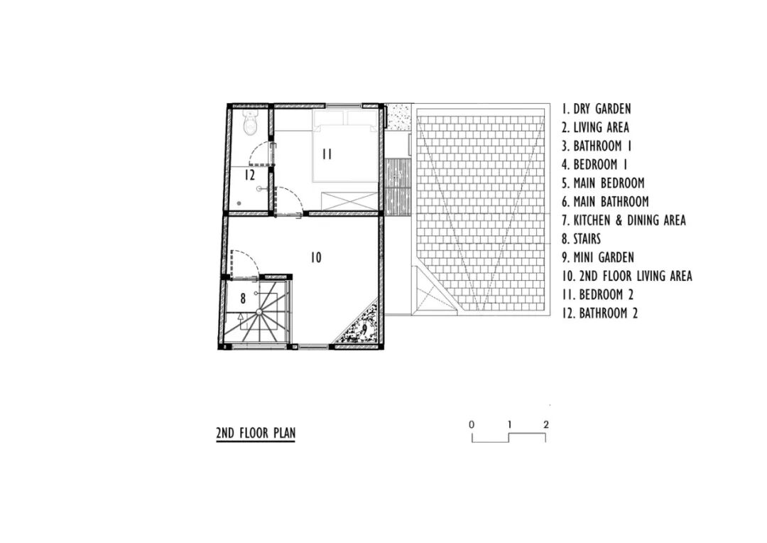
这栋70㎡的住宅位于Cipulir——一个人口稠密的区域。房前有一条1.5米宽的小巷,可供摩托车通行。基地上建造了两栋房屋,其中一栋供四口之家使用,另一栋则供一位残疾妇女使用。屋主是兄妹,因此有了“双生宅”的概念。
双生宅的概念,也是建筑回应基地限制的反应。居住在这里的两个家庭都需要私密性与空间,两栋房屋需要在同一片土地上和谐共生。在这一概念下,两栋房屋有着类似的形态,但不同的体量大小。四口之家这一边,配置了两个带独立卫生间的卧室,一个厨房和供一家人使用的餐厅。
另一侧的住宅则配置了一个带卫生间的卧室和一个起居室。公共空间将这个狭小的用地组织起来,使底层场地能够被灵活流动地利用。双生宅之中,每一个家庭都有着各自的私密区域,但同时依旧能够互相交流。经由通过两栋建筑的入口的相对关系,公共空间被联为了一体。
-END-
近期热文
▽
美爆了,极简主义别墅,真走心!
广州TIT里面的阴阳师主题店
关注公众号 获取更多新鲜设计资讯
上一篇:
星熊童子技能面板,攻击不高话又多,语言攻击气死对手
下一篇:
来测测你的二次元属性!
为您推荐
日日顺创客训练营大学生创业方案路演,且燃且爆的独家路透
秋风飒爽,青春飞扬|2019级新生军训汇报表演暨总结表彰大会
研究生宿舍哪家强!一间比一间豪华,你酸了吗?
北大汇丰商学院明年启动本科招生
家长会 | 家校携手育桃李 师生合力扬鲸帆
成达学校学业水平合格性考试班即将开课
校工会党支部与园艺2018级本科生党支部同上专题党课
【院闻其详】化工与安全学院召开学生会换届大会
经济与管理学院学生会换届
山西173名职业院校烹饪专业师生赛技能
在线QQ咨询,点这里
QQ咨询
微信服务号